化工储罐全天候防冻阻火呼吸阀安装维护
采用抽屉防火结构,便于清洗及维护,是安装在固定顶罐上的通风装置,起减少油品蒸发损耗,控制储罐压力及阻止外界火焰传入的作用。全天候防火呼吸阀是一种主要安装在常压(包括微内压)石油储罐顶部的安全装置,起减少油品蒸发损耗,控制储罐压力及阻止外界火焰传入的作用,可与液压安全阀配套使用。该阀具有通风量大,泄漏量小,耐腐蚀等特点,并有静电接地线,使该阀与罐体保持等电位。该阀具有防冻性能,适用于寒冷地区。
全天候防爆防火呼吸阀在因天气潮湿风沙情况下,温度达到零度范围内,储罐不可发油使用,如急需生产时必须先打开量油孔其它之类的供气产品,以保持储罐安全作用,本产品应三个月定期进行检查和保养。

●化工储罐全天候防冻阻火呼吸阀安装维护主要特点:
全天候防冻阻火呼吸阀具有通风量大,泄漏量小,耐腐蚀等特点,并有静电接地线,使该阀与罐体保持等电位。该阀具有防冻性能,适用于寒冷地区。全天候防火呼吸阀是一种主要安装在常压(包括微内压)石油储罐顶部的安全装置,起减少油品蒸发损耗,控制储罐压力及阻止外界火焰传入的作用,可与液压安全阀配套使用。该阀具有通风量大,泄漏量小,耐腐蚀等特点,并有静电接地线,使该阀与罐体保持等电位。该阀具有防冻性能,适用于寒冷地区。
全天候防爆防火呼吸阀在因天气潮湿风沙情况下,温度达到零度范围内,储罐不可发油使用,如急需生产时必须先打开量油孔其它之类的供气产品,以保持储罐安全作用,本产品应三个月定期进行检查和保养。

●化工储罐全天候防冻阻火呼吸阀安装维护主要技术参数:
操作压力: 正压:353Pa36mmH2O,
980Pa100mmH2O
负压:295Pa30mmH2O
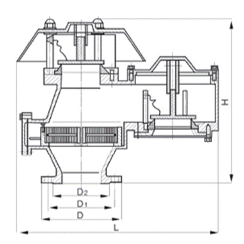
●化工储罐全天候防冻阻火呼吸阀安装维护结构图:

●化工储罐全天候防冻阻火呼吸阀安装维护外形尺寸:
| 公称通径 DN (mm) | H | L | D | D1 | n |
| 50 | 320 | 320 | 140 | 110 | 4×14 |
| 80 | 366 | 400 | 190 | 150 | 4×18 |
| 100 | 380 | 420 | 210 | 170 | 4×18 |
| 150 | 450 | 520 | 265 | 225 | 8×18 |
| 200 | 520 | 600 | 320 | 280 | 8×18 |
| 250 | 600 | 680 | 375 | 335 | 12×18 |
| 300 | 650 | 750 | 440 | 395 | 12×23 |
| 350 | 700 | 850 | 490 | 445 | 12×23 |
| 400 | 750 | 930 | 540 | 495 | 16×23 |
化工储罐全天候防冻阻火呼吸阀安装维护常见故障主要有:漏气、卡死、粘结、堵塞、冻结以及压力阀和真空阀常见开等。

1、漏气:一般是由于锈蚀、硬物划伤阀与阀盘的接触面、阀盘或阀座变形及阀盘导杆倾斜等原因造成。
2、卡死:多发生在由于呼吸阀安装不正确或油罐变形导致阀盘导杆歪斜以及阀杆锈蚀的情况下,阀座在沿导杆上下活动中不能到位,将阀盘卡于导杆某一部位。
3、粘结:是因为有蒸气、水分与沉积于阀盘、阀座、导杆上的尘土等杂物混合发生化学物理变化,久而久之使阀盘与阀座或导杆粘结在一起。
4、堵塞:主要是由于机械呼吸阀长期未保养使用,致使尘土、锈渣等杂物沉积于呼吸阀内火呼吸管内,以及蜂或鸟在呼吸阀口筑巢等原因,使呼吸阀堵塞。
5、冻结:是因为气温变化,空气中的水分在呼吸阀的阀体、阀盘、阀座和导杆等部位凝结,进而结冰,使阀难以开启。
以上这些故障,有的使呼吸阀达到控制压力时不能动作,造成油罐超压,危及油罐安全;有的则使呼吸阀失去作用,造成大小呼吸失控,从而增加进料的蒸发损耗,使介质质量下降,加重区域大气污染,影响操作人员身体健康,增加区域危险因素。

在例行巡检和每次作业时,要从外观和现象上加强检测分析,及时发现问题,及时解决。如储罐罐体和呼吸阀阀体有无异常变化;储罐进出物料作业时,呼吸阀运行情况是否正常;U型压力计的压表是否正常;封口网有没有破损,是否畅通;储罐管道式呼吸阀阀体有无漏气等。

化工储罐全天候防冻阻火呼吸阀安装维护安装说明:
1 .呼吸阀应安装在储罐气源的Z高点,以降低物料蒸发损耗和以便顺利地提供通向呼吸阀直接和Z大的通道。通常对于立式罐,呼吸阀应尽量安装在罐顶ZY顶板范围内,对于罐顶需设隔热层的储罐、可安装在梯子平台附近。
2 .当需要安装两个呼吸阀时,它们与罐顶ZX应对称布置。
3 .若呼吸阀用在氮封罐上,则氮气供气管的接管位置应远离呼吸阀接口,并由罐顶部插入储罐内约200mm ,这样氮气进罐后不直接排出,达到氮封的目的。

化工储罐全天候防冻阻火呼吸阀安装维护检查与维护内容
①打开顶盖 , 检查呼吸阀内部的阀盘、阀座、导杆、导孔、弹簧等有无生锈和积垢 , 并进行清洁 , 必要时用煤油清洗。
②检查阀盘活动是否灵活 , 有无卡死现象 , 密封面 ( 阀盘与阀座的接触面 ) 是否良好 , 必要时进行修理 , 由于密封面的材料为有色软金属 , 在对其研磨时 , 要选用较细的研磨剂。
③检查阀体封口网是否完好 , 有无冰冻、堵塞等现象 , 擦去网上的锈污和灰尘 , 保证气体进出畅通。
④检查压盖衬垫是否严密 , 必要时进行更换 , 给螺栓加油。
呼吸阀的检查周期
①全天候阻火呼吸阀在冬季使用时 , 当气温低于 0 ℃以下时 , 每周至少进行一次检查 , 防止阀盘与阀座因寒冷结冰粘住而失灵。
②对于地面罐和半地下罐的全天候防爆呼吸阀 , 每年的一、四季度每月检查两次 , 二、三季度每月检查一次。
③对于油库区的全天候防爆呼吸阀 , 每半年检查一次。

为了维护呼吸阀的安全,必须在一定的时间段内定期为呼吸阀做全面检查保养。
一、首先应该将呼吸阀拆开,认真清洗波纹,防止波纹上的积垢影响呼吸阀的顺畅打开关闭。
二、阻火层的小孔也是必须检查的内容,每一个孔都务必保持通透,不然会影响安全操作。
三、通风口的阀盘是呼吸阀中最灵活也到的部件,所以在维护中必须检查阀盘的灵活程度,以及连接杆是否稳固。
四、阀盘的密封性对呼吸阀来说也是非常重要的,检查压盖衬垫是否严密,所以一旦发现密封性有损坏迹象,要及时换新。检查过程也要注意不能产生新的破坏。注意给螺栓加油。
五、每一个,每次拆卸都要有相应记录,防止关键零件的遗失和损坏。
六、保养周期:一、四季度每月检查两次(防冻结);其他二、三季度每月检查一次。
本文地址: https://www.xsyiq.com/40995.html
网站内容如侵犯了您的权益,请联系我们删除。